Trong môi trường công sở hiện đại, một văn phòng được thiết kế hợp lý không chỉ mang lại không gian làm việc thoải mái, hiệu quả. Nó còn phản ánh văn hóa doanh nghiệp và tôn vinh giá trị thương hiệu. Bản vẽ thiết kế văn phòng đóng vai trò quan trọng trong việc hiện thực hóa những ý tưởng này. Một bản thiết kế hoàn hảo sẽ giúp doanh nghiệp có được một không gian làm việc lý tưởng cho nhân viên. Hãy cùng Thi công Dana tìm hiểu ngay những tiêu chí cần có để biến không gian làm việc của Anh chị trở thành nguồn cảm hứng vô tận.

1. Tầm quan trọng của bản thiết kế văn phòng.
Bản thiết kế văn phòng không chỉ là một bản vẽ kỹ thuật đơn thuần. Đây còn là một chiến lược thể hiện các yếu tố quan trọng như công năng, thẩm mỹ. Ngoài ra còn thể hiện khả năng tương tác của các không gian trong văn phòng. Một thiết kế hợp lý giúp nhân viên có một môi trường làm việc năng động, sáng tạo, hiệu quả. Đồng thời giúp công ty tiết kiệm chi phí đầu tư và bảo trì.
Sự hài hòa trong thiết kế tạo nên một không gian chuyên nghiệp và thu hút. Môi trường làm việc có thể ảnh hưởng trực tiếp đến tâm lý và hiệu suất công việc. Một thiết kế hợp lý giúp phân chia các khu vực làm việc tối ưu hóa không gian. Giảm bớt sự xao nhãng và khuyến khích sự tập trung cao độ. Bên cạnh đó, sự linh hoạt trong thiết kế cũng rất quan trọng. Giúp văn phòng có thể thay đổi và thích ứng với nhu cầu phát triển của doanh nghiệp trong tương lai.
Các yếu tố như màu sắc, ánh sáng, và không gian mở có thể làm tăng sự hứng khởi trong công việc. Thúc đẩy tinh thần làm việc nhóm và sự sáng tạo. Sự sáng tạo trong thiết kế có thể làm cho không gian làm việc trở nên độc đáo. Tạo dấu ấn riêng biệt cho công ty, tăng tính kết nối giữa nhân viên và văn hóa công ty.

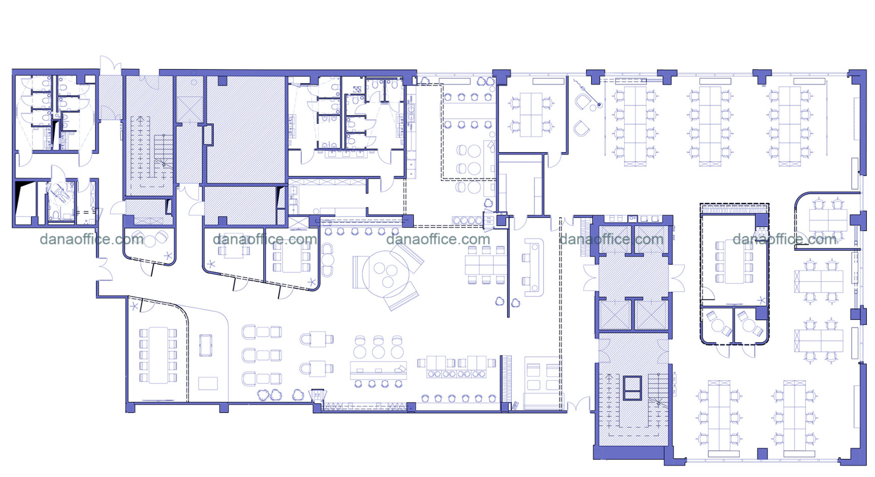
2. Tiêu chí cần lưu ý trong bản thiết kế văn phòng.
- Một trong những xu hướng thiết kế văn phòng hiện nay là không gian mở. Bản vẽ thiết kế cần đảm bảo sự thông thoáng và linh hoạt giữa các khu vực làm việc của nhân viên. Phòng họp, khu vực chung, tạo điều kiện thuận lợi cho sự tương tác và giao tiếp giữa các bộ phận.
- Một bản vẽ thiết kế phải đảm bảo sự phân chia rõ ràng giữa các không gian. Điển hình là phòng làm việc riêng, phòng họp, và khu vực tiếp khách,… Mỗi khu vực phải được thiết kế sao cho phù hợp với yêu cầu công việc. Giúp nâng cao hiệu quả công việc và sự thoải mái cho nhân viên. Xem xét các yếu tố như ánh sáng tự nhiên và hệ thống chiếu sáng nhân tạo. Đảm bảo tạo ra không gian sáng sủa và dễ chịu. Bên cạnh đó, việc thiết kế hệ thống thông gió và điều hòa không khí cũng rất quan trọng để duy trì môi trường làm việc trong lành.

3. Lợi ích của một bản thiết kế văn phòng chuyên nghiệp.
Một văn phòng được thiết kế hợp lý giúp cải thiện khả năng tập trung và sự sáng tạo của nhân viên. Đồng thời tối ưu hóa các yếu tố như ánh sáng, không gian, giúp nâng cao hiệu quả công việc. Thiết kế văn phòng đúng đắn giúp tiết kiệm diện tích sử dụng. Giảm thiểu chi phí đầu tư ban đầu và chi phí bảo trì lâu dài. Ngoài ra, văn phòng được thiết kế đẹp mắt, chuyên nghiệp sẽ tạo ấn tượng mạnh mẽ đối với khách hàng. Từ đó góp phần nâng cao hình ảnh thương hiệu của công ty.
Bản vẽ thiết kế văn phòng là yếu tố không thể thiếu trong việc xây dựng một môi trường làm việc tối ưu. Việc lựa chọn một thiết kế phù hợp không chỉ mang lại sự tiện nghi cho nhân viên. Mà còn góp phần vào sự phát triển bền vững của doanh nghiệp. Hãy đầu tư vào thiết kế văn phòng ngay từ những bước đầu tiên để đạt được một không gian làm việc lý tưởng.

4. Thế mạnh của Thi công Dana trong bản vẽ thiết kế văn phòng.
Việc lựa chọn một đơn vị thi công uy tín và chuyên nghiệp đóng vai trò rất quan trọng trong việc hiện thực hóa bản vẽ thiết kế. Thi công Dana, với kinh nghiệm lâu năm trong lĩnh vực thiết kế và thi công nội thất văn phòng. Phong cách thiết kế tinh tế nhẹ nhàng, sang trọng, độc đáo dựa trên nhận diện thương hiệu của Doanh nghiệp. Là sự lựa chọn hoàn hảo để giúp Anh chị xây dựng một môi trường làm việc tối ưu và hiện đại.
Với đội ngũ kỹ sư, kiến trúc sư và công nhân tay nghề cao. Thi công Dana cam kết thực hiện đúng mọi yêu cầu và chi tiết của bản vẽ thiết kế. Tạo nên không gian văn phòng lý tưởng cho doanh nghiệp.
Nếu Anh chị đang ấp ủ dự định xây dựng một văn phòng hiện đại, tiện ích. Đừng ngần ngại mà hãy nhanh tay liên hệ Thi Công Dana. Lựa chọn Thi công Dana để bắt đầu hành trình xây dựng một văn phòng lý tưởng ngay hôm nay.
Để tìm hiểu thêm về những bản thiết kế văn phòng, Anh chị hãy truy cập vào link cuối bài để tham khảo nhé.
Chân thành cảm ơn quý Anh chị đã tham khảo bài viết.
Trân trọng!






Xem thêm:
» Tiêu chí lựa chọn đơn vị thiết kế thi công văn phòng
Được viết bởi: Thi Công Dana
Chia sẻ: